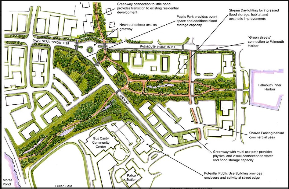
The following is information from The Falmouth Enterprise article published on Jan. 22, 2026 online and in the Friday edition Jan. 23, 2026 on page 10, entitled, “Roundabout At Route 28 Remains Conceptual”. To read the full article, click here .
If you do not subscribe to The Falmouth Enterprise, you should be able to read the article for a few days after publication; later, the page may be blocked with a request to ‘please subscribe’.
If you do subscribe to The Falmouth Enterprise and the page is blocked, open https://www.capenews.net/falmouth/eedition/, click on the edition you want to read and use the arrows to scroll to the page. If you have never logged in before, it will ask you to do so; you may need to create an ID and password. Once you have done so, the page should open automatically when you log in on that device.
